土地 松本市大字今井西耕地区画1
所在地
松本市大字今井西耕地区画1
880万円
83.24坪
【近隣情報】
ザ・ビッグ 山形店まで約1700m
ファミリーマート 新山形グリンロード店まで約1600m
JA松本ハイランド ファーマーズガーデン やまがたまで約1700m
今井恵みの里まで約1400m
セブン-イレブン 松本今井店まで約1400m
あるが内科クリニックまで約1400m
松本市立 今井保育園まで約1200m
物件概要
- 交通
-
バス停藤岡前 まで 徒歩11分
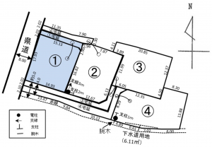
- 接道状況
- 西側 公道8m 間口約5m
- 土地面積
- 実測 275.18㎡ (83.24坪)
- 建ぺい率
- 60%
- 容積率
- 200%
- 土地権利
- セットバック
- 無し
- 小学校区
- 今井 ( 1000m )
- 中学校区
- 鉢盛 ( 2800m )
- 私道負担
- 建築条件
- ー
- 地目
- 宅地
- 現況
- 更地
- 引渡時期
- 即時
- 上水道
- 下水道
- ガス
- 都市計画
- 市街化調整区域
- 用途地域
- 設備・条件
- 備考
-
■別途費用:上水負担金31,400円、下水負担金141,710円 通行地役権60,000円、管布設地役権50,000円、河川占用料960円/年
■宅延 32.88㎡(無償)河川占用面積 5.6㎡
■区画①②③④の建築確認申請はそれぞれの宅延①②③④で取るものとする。又、宅延部分の維持管理は所有者及び使用者が行うものとする。
■都市計画 市街化調整区域(区域指定区域内)
■他の法令上の制限 河川占用者変更許可 河川保全区域許可 43条許可(宅内浸透漕は買主負担)
■接道 県道土合松本線 W=8.0m 接2.0m(5.0m) - 取引態様
- 仲介


