土地 松本市笹部4丁目
所在地
松本市笹部4丁目
1,150万円
118.57坪
【近隣情報】
スーパーマーケットバロー笹部店まで約750m
西友笹部店まで約850m
ローソン 松本笹部店まで約700m
笹部保育園まで約750m
物件概要
- 交通
-
篠ノ井線 南松本駅 まで 徒歩30分
- 接道状況
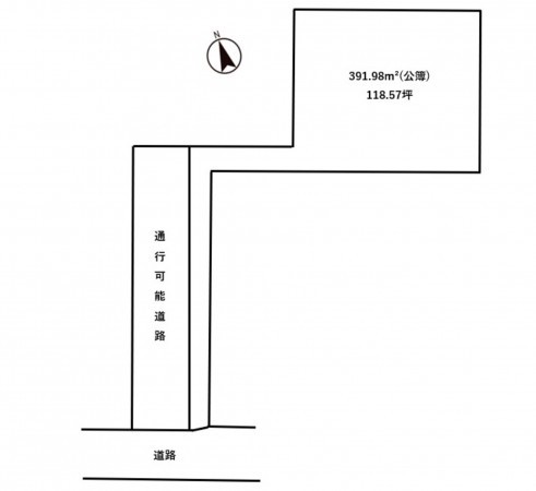
- 南側 公道7.2m 間口約2m
- 土地面積
- 公簿 391.98㎡ (118.57坪)
- 建ぺい率
- 50%
- 容積率
- 80%
- 土地権利
- 所有権
- セットバック
- 無し
- 小学校区
- 鎌田 ( 2300m )
- 中学校区
- 鎌田 ( 2100m )
- 私道負担
- 建築条件
- ー
- 地目
- 宅地
- 現況
- 更地
- 引渡時期
- 即時
- 上水道
- 下水道
- ガス
- 都市計画
- 市街化区域
- 用途地域
- 1種低層 (一部2種住居を含む)
- 設備・条件
- 備考
- 取引態様
- 仲介


