新築一戸建て 塩尻市大字広丘堅石広丘堅石第4 3号棟
所在地
塩尻市大字広丘堅石広丘堅石第4 3号棟
3,080万円
30.62坪
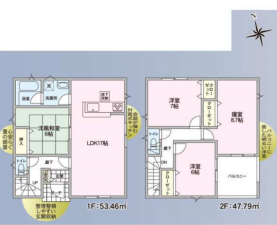
4LDK
照明器具付き、防犯カメラ、人感センサーライトが設置されます。
玄関キーはディンプルキーです。
周囲には商業施設・飲食店も多数あり生活に便利な立地です。
国道にも近く、塩尻インターまで車で約9分です。
車で足を延ばせばブドウ畑が広がり、ブドウ狩り・ワイナリー巡りも楽しめます
セブン-イレブン 塩尻高出店まで徒歩約3分
ザ・ビッグ 塩尻広丘店まで徒歩約8分
ツルヤ 広丘店・無印良品塩尻広丘店まで徒歩約10分
カインズ 塩尻店まで徒歩約21分
塩尻市立 日の出保育園まで徒歩約12分
シルバー内科クリニックまで徒歩約11分
物件概要
- 交通
-
篠ノ井線 塩尻駅 まで 徒歩29分
- 接道状況
- 西側 公道4m 間口約2m
- 土地面積
- 公簿 188.19㎡ (56.92坪)
- 建物面積
- 101.25㎡ (30.62坪)
- 築年数
- 2026年 (令和8) 3月
- 建ぺい率
- 60%
- 容積率
- 200%
- 土地権利
- 所有権
- 構造および階数
- 木造 地上2階建
- 小学校区
- 桔梗 ( 1300m )
- 中学校区
- 広陵 ( 1200m )
- 私道負担
- 地目
- 宅地
- 現況
- 空
- 引渡時期
- 予定
- 駐車場
- 有
- 上水道
- 公共
- 下水道
- 公共
- ガス
- プロパン個別
- 都市計画
- 市街化区域
- 用途地域
- 工業
- 設備・条件
- ルーフバルコニー、システムキッチン、カウンターキッチン、シャンプードレッサー、浴室乾燥機、モニタ付インターホン、洗浄便座、複層ガラス、追い焚き、駐車場2台分、床下収納、トイレ2箇所
- 備考
-
宅地造成工事規制区域です。
設計住宅性能評価書・建築住宅性能評価書・住宅性能保証付・フラット35S適合証明書・建築確認完了検査済証が取得済みです。
フラット35S金利Aタイプ利用可能です。
土地面積に協定通路約46.28平米(うち路地状部分約27平米)を含みます。
建物面積に別途ルーフバルコニー約7.29平米有ります。
入居予定年月:2026年03月上旬を予定しております。
【施工業者:株式会社アーネストワン】 - 取引態様
- 仲介


