中古一戸建て 塩尻市大門二番町
所在地
塩尻市大門二番町
1,280万円
42.38坪
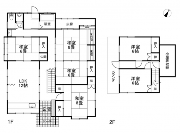
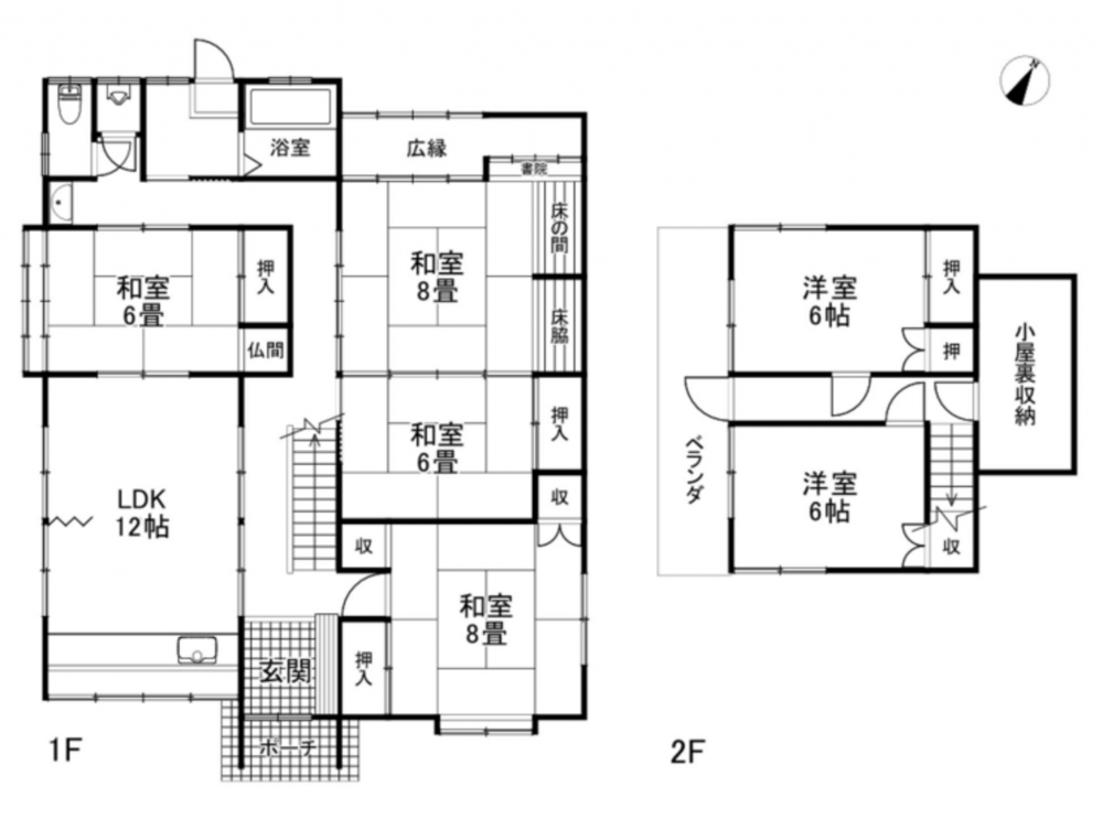
6LDK
塩尻駅まで徒歩約12分と中心部に近くお買い物にも通勤通学にも便利な立地です。
部屋数も多くリモートでのお仕事や趣味でのお部屋にも困りません。
セブン-イレブン 塩尻大門店まで徒歩約6分
デリシア 塩尻店まで徒歩約4分
サンドラッグ 塩尻店まで徒歩約4分
塩尻めぐみ幼稚園まで徒歩約10分
サン・サンこども園 グレイスフル塩尻まで徒歩約11分
中山外科内科まで徒歩約9分
塩尻市市民交流センター(えんぱーく)まで徒歩約5分
物件概要
- 交通
-
中央線 塩尻駅 まで 徒歩12分
- 接道状況
- 南東側 公道5.5m 間口約12.5m
- 土地面積
- 公簿 213.03㎡ (64.44坪)
- 建物面積
- 140.13㎡ (42.38坪)
- 築年数
-
1978年
(昭和53)
10月
築47年 - 建ぺい率
- 60%
- 容積率
- 200%
- 土地権利
- 所有権
- 構造および階数
- 木造 地上2階建
- 小学校区
- 塩尻西 ( 450m )
- 中学校区
- 塩尻 ( 1500m )
- 私道負担
- 無
- 地目
- 宅地
- 現況
- 空
- 引渡時期
- 即時
- 駐車場
- 有
- 上水道
- 公共
- 下水道
- 公共
- ガス
- プロパン個別
- 都市計画
- 市街化区域
- 用途地域
- 1種住居
- 設備・条件
- 洗浄便座、追い焚き
- 備考
-
給湯設備は買主の負担にて設置していただきます。
- 取引態様
- 仲介


