中古一戸建て 松本市筑摩2丁目
所在地
松本市筑摩2丁目
1,500万円
22.58坪
1LDK
閑静な住宅街です。
物件周辺は静かな地域ですが徒歩10分程で商業施設も多数ある便利な立地です。
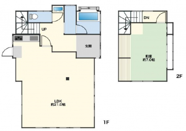
リビングも約21帖と広く、日当たりも良好です。
リビングの生活スペースと2階のプライベートスペースと分かれており生活しやすい間取りです。
水回りの設備も新しく、すぐに生活が始められます。
セブン-イレブン 松本神田店まで徒歩約10分
デリシア 庄内店・綿半ホームエイド 庄内店まで徒歩約16分
ツルヤ 並柳店まで徒歩約19分
神田保育園まで徒歩約10分
原こどもクリニックまで徒歩約8分
降旗医院まで徒歩約9分
物件概要
- 交通
-
松本電鉄 西松本駅 バス10分乗車 バス停筑摩小学校口 まで 徒歩7分
- 接道状況
- 東側 公道3.7m
- 土地面積
- 公簿 165.00㎡ (49.91坪)
- 建物面積
- 74.66㎡ (22.58坪)
- 築年数
-
1971年
(昭和46)
6月
築54年 - 建ぺい率
- 60%
- 容積率
- 200%
- 土地権利
- 所有権
- 構造および階数
- 木造 地上2階建
- 小学校区
- 筑摩 ( 850m )
- 中学校区
- 開成 ( 1700m )
- 私道負担
- 無
- 地目
- 宅地
- 現況
- 空
- 引渡時期
- 相談
- 駐車場
- 有
- 上水道
- 公共
- 下水道
- 公共
- ガス
- 都市計画
- 市街化区域
- 用途地域
- 1種中高
- 設備・条件
- システムキッチン、IHクッキングヒーター、シャンプードレッサー、モニタ付インターホン、洗浄便座、追い焚き、駐車場2台分、エコキュート
- 備考
- 1971年6月建築(1992年月日不詳増築)
- 取引態様
- 仲介


